Dodaj produkty podając kody
Lepsze pod każdym względem
Produkty ProSys™ to komplet rozwiązań instalacyjnych do łazienki, przeznaczonych do toalet, bidetów, umywalek, pisuarów i pryszniców.
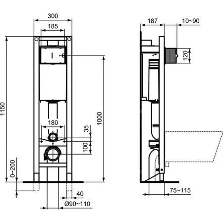
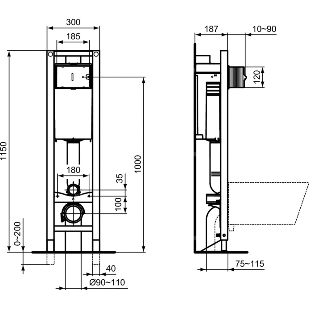
PROSYS ECO M, wolnostojący stelaż podtynkowy do miski wiszącej WC, mechaniczny system spłukujący. Podtynkowa instalacja z ramą nośna, wsporniki mocowania do posadzki z czteroma punktami montażu. Szerokość ramy stelaża 30 cm, dedykowany do pomieszczeń o ograniczonej, wąskiej powierzchni. Stelaż testowany na obciążeniu 400 kg.Rama stelaża zabezpieczona i odporna na korozję. Szybka instalacja z systemem EasyFix. Regulowane kolano rury odpływowej. Wsporniki z blokadą ułatwiającą montaż i regulacją wysokości w zakresie od 0 do 200 mm. Zbiornik z system spłukującym montowanym od frontu. Spłukiwanie 2-funkcyjne, fabryczne ustawienie 6/3 l, regulacja spłukiwania do 4/2 l. Zbiornik spłukujący wykonany z polipropylenu (PP), wyposażony w obudowę antykondensacyjną. Zawór napełniający z oznaczeniem CE norma EN 14055 CL1, klasa akustyczna pracy I zgodna ze standardami NF, głębokość zbiornika 187 mm, 1 punkt montażu dopływu wody. Elementy w komplecie: Standardowy zestaw montażowy do miski. Kompletny zestaw montażowy do stelaża. Komplet przyłączeniowy do miski WC (rura odpływowa i dopływowa). Rura odpływu do kanalizacji z adapterem Ø90/110. Gumowa uszczelka do miski ø45. Osłona montażowa. Zawór zamykający G½". Do skompletowania z zamawianymi oddzielnie przyciskami spłukującymi: Mechaniczne przyciski spłukujące: OLEAS M1, M2, M3, M4; SOLEA M1, M2; SEPTA PRO M1, M2.
- Typ: Wolnostojące Stelaże do WC
- Sposób działania: Mechaniczna
- Instalacja: Sucha zabudowa
- Min. głębokość: 187 mm
- Kolekcja: ProSys
- Wysokość: 1150 mm
- Szerokość: 300 mm
- Głębokość: 187 mm
- Montaż: Kompakt WC wiszący
- Waga netto: 13.00 kg
- Sektor: Budownictwo mieszkaniowe, Hotelarstwo, Biuro, Opieka zdrowotna, Edukacja, Relaks









