Dodaj produkty podając kody
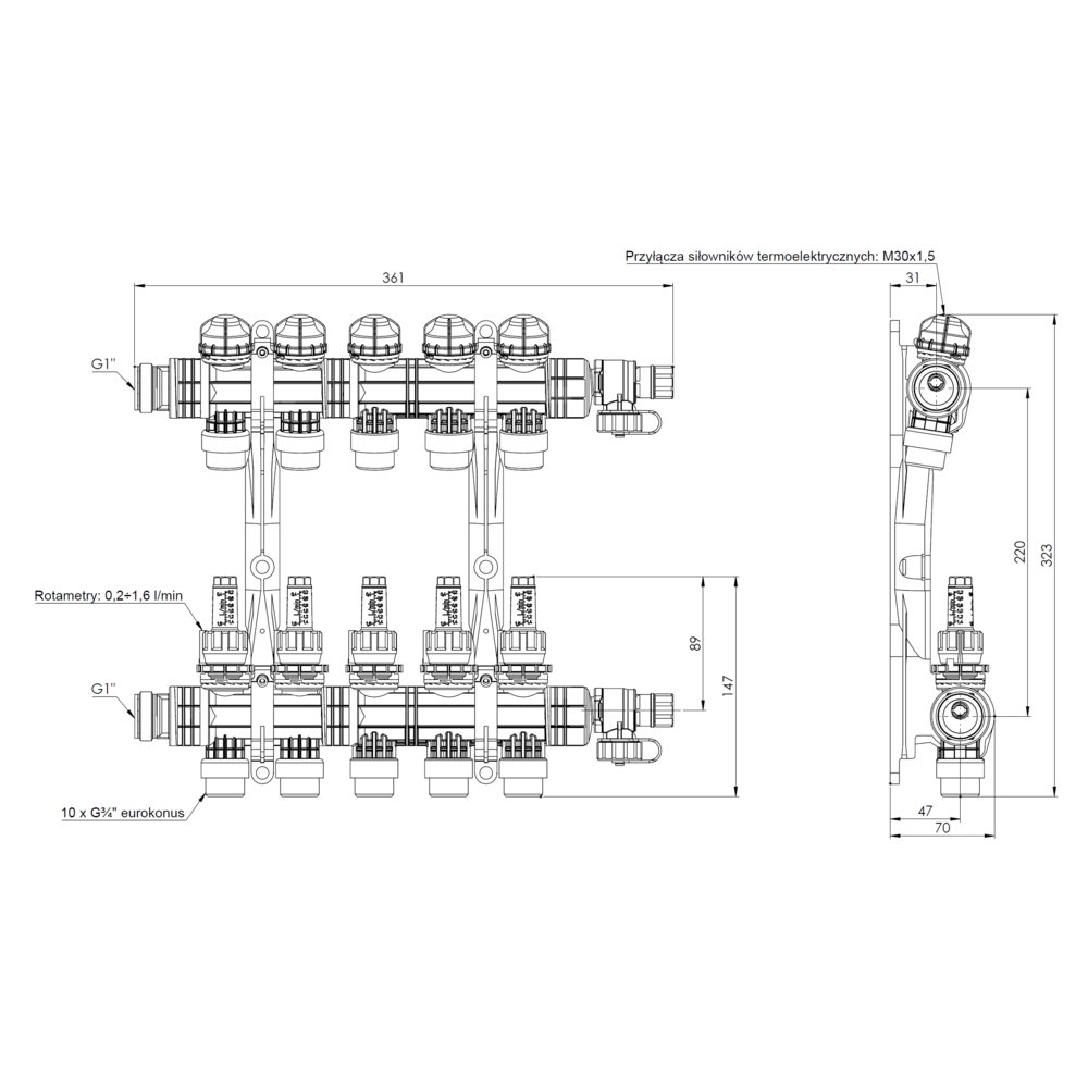
Rozdzielacz do ogrzewania podłogowego AFRISO ProCalida EF1 K 5-obieg. poliamid GZ 1'' x euroconus 3/4'' + przepływomierz + zawór napełn/spust
Rozdzielacze poliamidowe ProCalida EF1 K stosuje się w instalacjach ogrzewania lub chłodzenia płaszczyznowego. Montowane są głównie w szafkach umieszczonych w ścianach budynku, skąd rozprowadzają ciepło ze źródła do poszczególnych pętli instalacji płaszczyznowej. Możliwy jest również montaż pod stropem w instalacjach sufitowych. Z ich pomocą reguluje się ilość ciepła kierowaną do konkretnych pomieszczeń, napełnia, opróżnia oraz odpowietrza instalacje płaszczyznowe. Połączone z systemami sterowania FloorControl lub CosiTherm i siłownikami termoelektrycznymi TSA zapewniają stale komfortową temperaturę w każdym z pomieszczeń.
Urządzenie przeznaczone jest do obsługi 5 obiegów grzewczych. Kompletny rozdzielacz składa się z belek zasilającej i powrotnej oraz wieszaków ściennych. Belka zasilająca wyposażona jest w rotametry do regulacji przepływu. Belka powrotna wyposażona jest w zawory do ręcznego zamykania obiegów lub montażu siłowników termoelektrycznych. Obie belki zakończone są zaworami do odpowietrzania, opróżniania, napełniania i płukania instalacji. Do zaworów można podłączyć przyłącza do węża elastycznego. Już posiadany rozdzielacz ProCalida można rozbudować o dowolną ilość sekcji (dzięki rozszerzeniom) oraz o bajpas z zaworem upustowym różnicy ciśnień.
- przyłącza: 2xG1"
- materiał: poliamid, PA 66
- ilość obiegów: 5
- zakres regulacji rotametrów: 0,2÷1,6 l/min
- przyłącza siłowników termoelektrycznych: M30x1,5
- parametry pracy: max 90 st. przy 3 bar, max 60 st. przy 6 bar

















