Dodaj produkty podając kody
KESSEL Przepompownia Aquapump Medium, Mono, ścieków Ścieki bez fekaliów, klasa obciążenia D 400, głębokość zabudowy 1800 - 2250 mm, wysokość 50 mm, dł. pokrywy 680 mm, prąd rozruchowy maks. 6,9 A, z pompą zatapialną GTF 600, rozpoznawania poziomu mechaniczny
- Najwyższe bezpieczeństwo
- skonfigurowany fabrycznie
- System studzienki LW 600 do zabudowy w ziemi
Przepompownia Aquapump Medium Mono, GTF 600-, 1800-2250 mm, D
Przepompownia do ścieków bez fekaliów jest wyposażona w jedną lub dwie pompę zanurzeniową oraz zawór zwrotny. Za zbiornik służy system studzienki LW 600 z trwałego tworzywa sztucznego (PE-LLD) z otwartą komorą pompy z uniwersalnymi możliwościami podłączenia. Zamknięcia szybkomocujące umożliwiają łatwe wyjęcie zintegrowanych komponentów.
Wersja
- Typ urządzenia: Pojedyncza jednostka
- Uszczelka do przeprowadzenia przewodu rurowego (DN): 100
- Uszczelka przelotowa do przewodu wentylacyjnego (DN): 100
- Ustawienie: Ustawienie mokre
- Sterowanie pompą: Przełącznik pływakowy
- Zawór zwrotny: zintegrowany
- Przewód tłoczny: poziomy
- System studzienek: LW 600
Cechy ogólne
- Kolor: czarny
- Norma: EN 12050-2
- Typ ścieków: Ścieki bez fekaliów
- Sposób zabudowy: zabudowa w ziemi
- Stan w momencie dostawy: Zestaw modułowy do montażu w miejscu instalacji
- Typ urządzenia: Mono
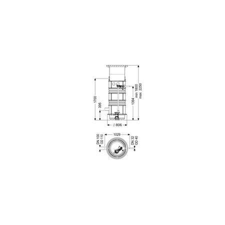
Wymiary
- Ciężar netto: 161 kg
- Ciężar brutto: 173 kg
- Odporność na wodę gruntową od dolnej krawędzi dna: 2000 mm
- Głębokość zabudowy: 1800 - 2250 mm
- Rodzaj regulacji wysokości: Nasada teleskopowa
- Długość: 806 mm
- Szerokość: 806 mm
- Wymiar opakowania: dł.: 1200 mm
- Wymiar opakowania: szer.: 800 mm
- Wymiar opakowania: wys.: 2220 mm
Zbiornik/korpus
- Przewód tłoczny (DN): 32
- Przewód tłoczny (DA): 40 mm
- Przyłącze przejścia kablowego (DN): 100
- Przyłącze odpowietrzające (DN): 100
- Odstęp między środkiem rury odpływowej a dnem zbiornika: 1394 mm
- Odstęp między dnem rury dopływowej a dnem zbiornika: 400 mm
- Odstęp między środkiem rury dopływowej a dnem zbiornika: 455 mm
- Wielkość nominalna dopływu (DA): 110 mm
- Wielkość nominalna dopływu (DN): 100 mm
- Liczba dopływów: 1
- Szerokość w świetle zbiornika urządzenia (LW): 600 mm
- Szerokość w świetle włazu (LW): 600 mm
Cechy pokrywy
- Typ pokrywy: pokrywa okrągła
- Materiał pokrywy: Żeliwo szare z wypełnieniem betonowym
- Kolor pokrywy: czarny
- Pokrywy, Szerokość: 680 mm
- Pokrywy, Wysokość: 50 mm
- Pokrywy, Długość: 680 mm
- Blokada: niezaryglowany
- Klasa obciążenia: D 400 (EN 124)
Przenośnik
- Pompa: GTF 600
- Liczba pomp: 1
- Ciężar, pompa: 6 kg
- Typ przyłącza: Wtyczka ze stykiem ochronnym, 2-biegunowa
- Prąd znamionowy: 2,7 A
- Długość przewodu sieciowego pompy: 10 m
- Klasa ochrony: I
- Klasa izolacji: F
- Współczynnik mocy Cos phi: 0,91
- Stopień ochrony pompy: IP 68 (3 m)
- Nadzór temperatury: zintegrowany
- Maks. temperatura tłoczonego medium (przy pracy stałej): 40 °C
- Maks. wydajność tłoczenia: 12 m³/h
- Maks. wys. podnoszenia: 8 m
- Prędkość obrotowa: 2800 U/min
- Pobór mocy P1: 0,6 kW
- Pobór mocy P2: 0,36 kW
- Tryb roboczy: S1
- Wymagane zabezpieczenie (zabezpieczenie linii): C 16 A
- Typ przewodu przyłączeniowego pompy: H07RN-F 3G 1,5 mm²
- Typ wirnika: Wolny przelot
Sterowanie
- Instrument do rozpoznania poziomu: Przełącznik pływakowy
- Typ pomiaru poziomu: mechaniczny
- Częstotliwość sieciowa: 50 Hz
- Napięcie robocze: 230 V
- Typ przyłącza: Wtyczka ze stykiem ochronnym, 2-biegunowa
- Długość przewodu sieciowego sterownik: 1,4 m
- Prąd znamionowy: 2,7 A









